• Darba laiks: 10:00 - 18:00 Brīvdienās: brīvs

  • Tālrunis: 26637111

Seko mums:
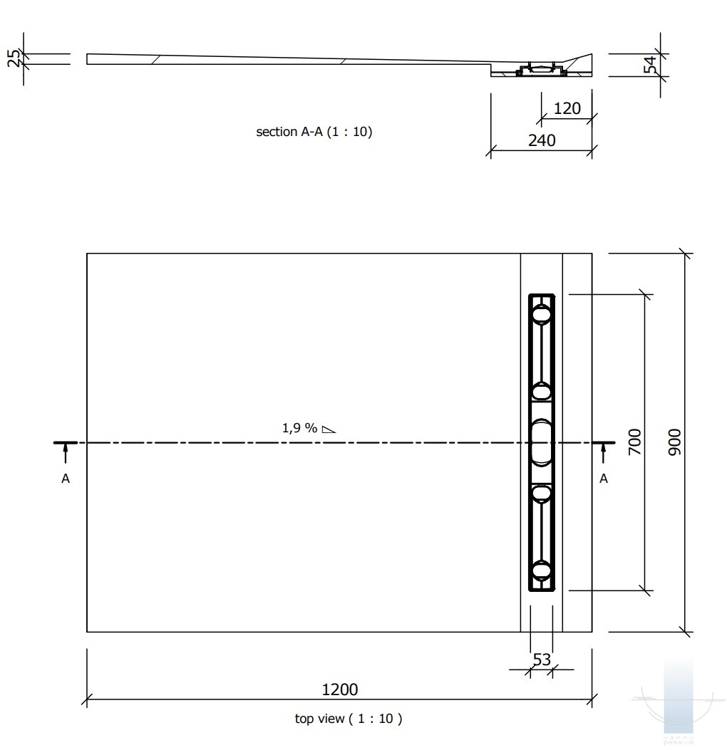
Fundo RioLigno 120x90 cm, ar kanālu no sienas 700 mm

Fundo RioLigno 120x90 cm, ar kanālu no sienas 700 mm

Fundo RioLigno dušas paliktnis ir grīdas līmenī iebūvējams dušas elements ar lineāru noteci, kas paredzēts koka pārsegumiem. Tam ir zems ārējās malas biezums — tikai 25 mm — un tas ir pilnībā saderīgs ar wedi sistēmas produktiem, kas ievērojami atvieglo uzstādīšanu.

  • Forma: Taisnstūrveida
  • Izmērs: 1200x900x25 mm
  • Tekne: 700 mm

Nesamība ratiņkrēsla slodzei, minimālais flīzes izmērs:
50 × 50 mm

Stikla mozaīka, minimālais izmērs:
20 × 20 mm

Fundo RioLigno standarta augstums:
Ārējās malas augstums: 25 mm
Pastiprinātās kanāla zonas augstums: 54 mm

Minimālais uzstādīšanas augstums atkarībā no trapas:

  • Fundo kanāla trapa horizontālais izvads, DN 50 – 134 mm

  • Fundo kanāla trapa Mini Max horizontālais izvads, DN 40 – 103 mm

  • Fundo kanāla trapa vertikālais izvads, DN 50 – 54 mm

  • Fundo kanāla trapa vertikālais izvads, DN 50 ar ugunsdrošības aproci – 54 mm

Noteces tehniskās īpašības

Fundo RioLigno ir pieejams ar hermētiskiem kanāliem šādos garumos:

  • 700 mm

  • 800 mm

  • 900 mm

Noteces caurplūde atkarībā no izvēlētā trapa:

  • Fundo kanāla traps Mini Max, horizontālais, DN 40 – 0,5 l/s (30 l/min)

  • Fundo kanāla traps, horizontālais, DN 50 – 0,8 l/s (48 l/min)

  • Fundo kanāla traps, vertikālais, DN 50 – 1,1 l/s (66 l/min)

Kanāla vāku tehniskās īpašības

  • wedi Fundo standarta kanāla vāks: 5–23 mm

  • wedi Fundo ekskluzīvais kanāla vāks: 5–25 mm

  • wedi Fundo flīzējamais kanāla vāks: 5–25 mm

Cieto putu tehniskās īpašības

Ekstrudēta polistirola (XPS) cieto putu serdenis

  • Ilgtermiņa spiedes spriegums (50 gadi) pie ≤ 2% saspiedes, EN 1606: 0,08 N/mm²

  • Spiedes izturība pie 10% saspiedes, EN 826: 0,25 N/mm²

  • Siltumvadītspēja, EN 13164: 0,036 W/mK

  • Tilpummasa, EN 1602: 32 kg/m³

  • Temperatūru diapazons: -50 °C līdz +75 °C

  • Ugunsreakcija, EN 13501 (būvmateriālu klase): E

  • Pārbaudīta ūdensnecaurlaidība: 1,5 bar

 

369.99

www.vannupasaule.lv
Tālr.:26637111
E-mail:info@vannupasaule.lv
http://www.vannupasaule.lv/produkti/skatit/prece/74273

Fundo RioLigno 120x90 cm, ar kanālu no sienas 700 mm

Fundo RioLigno 120x90 cm, ar kanālu no sienas 700 mm

Apraksts

Fundo RioLigno 120x90 cm, ar kanālu no sienas 700 mm

Fundo RioLigno dušas paliktnis ir grīdas līmenī iebūvējams dušas elements ar lineāru noteci, kas paredzēts koka pārsegumiem. Tam ir zems ārējās malas biezums — tikai 25 mm — un tas ir pilnībā saderīgs ar wedi sistēmas produktiem, kas ievērojami atvieglo uzstādīšanu.

  • Forma: Taisnstūrveida
  • Izmērs: 1200x900x25 mm
  • Tekne: 700 mm

Nesamība ratiņkrēsla slodzei, minimālais flīzes izmērs:
50 × 50 mm

Stikla mozaīka, minimālais izmērs:
20 × 20 mm

Fundo RioLigno standarta augstums:
Ārējās malas augstums: 25 mm
Pastiprinātās kanāla zonas augstums: 54 mm

Minimālais uzstādīšanas augstums atkarībā no trapas:

  • Fundo kanāla trapa horizontālais izvads, DN 50 – 134 mm

  • Fundo kanāla trapa Mini Max horizontālais izvads, DN 40 – 103 mm

  • Fundo kanāla trapa vertikālais izvads, DN 50 – 54 mm

  • Fundo kanāla trapa vertikālais izvads, DN 50 ar ugunsdrošības aproci – 54 mm

Noteces tehniskās īpašības

Fundo RioLigno ir pieejams ar hermētiskiem kanāliem šādos garumos:

  • 700 mm

  • 800 mm

  • 900 mm

Noteces caurplūde atkarībā no izvēlētā trapa:

  • Fundo kanāla traps Mini Max, horizontālais, DN 40 – 0,5 l/s (30 l/min)

  • Fundo kanāla traps, horizontālais, DN 50 – 0,8 l/s (48 l/min)

  • Fundo kanāla traps, vertikālais, DN 50 – 1,1 l/s (66 l/min)

Kanāla vāku tehniskās īpašības

  • wedi Fundo standarta kanāla vāks: 5–23 mm

  • wedi Fundo ekskluzīvais kanāla vāks: 5–25 mm

  • wedi Fundo flīzējamais kanāla vāks: 5–25 mm

Cieto putu tehniskās īpašības

Ekstrudēta polistirola (XPS) cieto putu serdenis

  • Ilgtermiņa spiedes spriegums (50 gadi) pie ≤ 2% saspiedes, EN 1606: 0,08 N/mm²

  • Spiedes izturība pie 10% saspiedes, EN 826: 0,25 N/mm²

  • Siltumvadītspēja, EN 13164: 0,036 W/mK

  • Tilpummasa, EN 1602: 32 kg/m³

  • Temperatūru diapazons: -50 °C līdz +75 °C

  • Ugunsreakcija, EN 13501 (būvmateriālu klase): E

  • Pārbaudīta ūdensnecaurlaidība: 1,5 bar

 

Artikuls: 075100201
Ražotājs:  Wedi (Vācija)

Specifikācija

Garantija: 2 Gadi
369,99 €
Pievienots grozam Aizvērt
Fundo RioLigno 120x90 cm, ar kanālu no sienas 700 mm